- Woonoppervlakte
- Circa 311 m²
- Perceeloppervlakte
- Circa 2650 m²
- Bouwjaar
- Gebouwd in 2019
- Aantal kamers
- 4 kamers (3 slaapkamers)
Unieke kans aan de Vinkeveense Plassen
Groenlandse Kade 101A – Luxe villa met adembenemend uitzicht
Deze uitzonderlijke vrijstaande villa, in 2019 onder architectuur volledig gerenoveerd, biedt een woonoppervlak van circa 311 m² en ligt op een royaal perceel van ca. 2.650 m². Hier woont u met ultiem comfort en geniet u dagelijks van een panoramisch uitzicht over de Zuidplas. De woning is duurzaam gebouwd met hoogwaardige materialen, beschikt over energielabel A+ en biedt volop privacy en veiligheid.
Vanaf het elektrisch bedienbare toegangshek rijdt u het volledig gefundeerde, onderhoudsvrije parkeerterrein op, met ruimte voor meerdere auto's. Hier bevindt zich ook een eigen showroom, perfect om uw favoriete auto of kunstcollectie te etaleren – of desgewenst toe te voegen aan de leefruimte. Verder zijn er twee ruime bergingen, waarvan één via de woning en carport bereikbaar is. De tweede berging ligt separaat op het voorterrein.
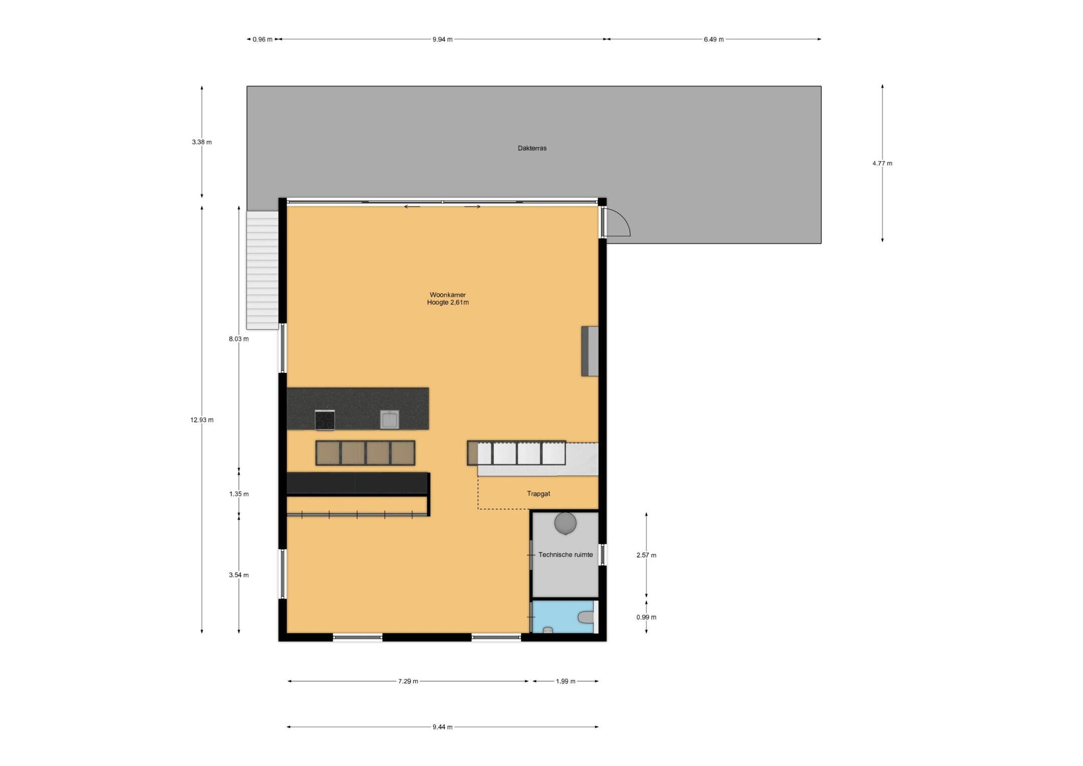
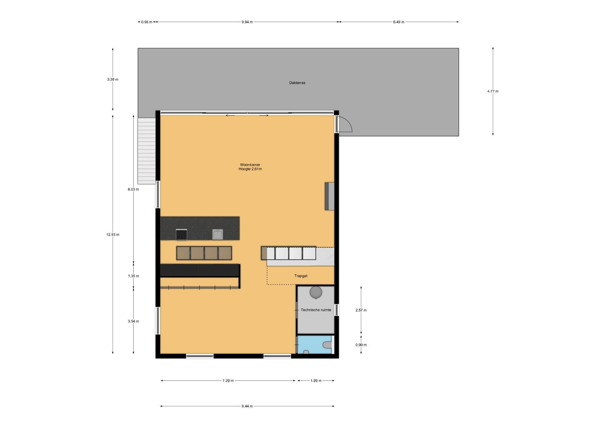
De woonverdieping bevindt zich op de eerste etage, zodat u vanuit de living optimaal van het uitzicht op de plas kunt genieten. Via de glazen schuifpui betreedt u het riante dakterras van ca. 68 m², met gunstig zonligging. Dankzij de vrijstaande ligging en grote raampartijen rondom, in combinatie met een lichtstraat boven het trappenhuis, is de woning zeer licht.
De luxe open keuken is voorzien van hoogwaardige inbouwapparatuur. De achterzijde van de living is momenteel ingericht als entertainmentruimte, maar leent zich ook perfect als werk- of hobbyruimte. Een separaat toilet voor gasten en ingebouwde kasten zorgen voor extra comfort en functionaliteit.
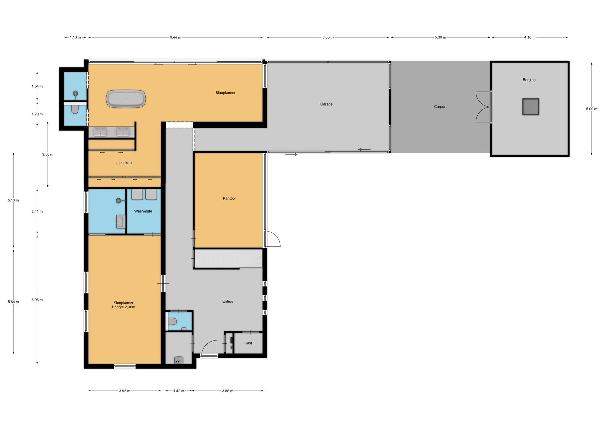
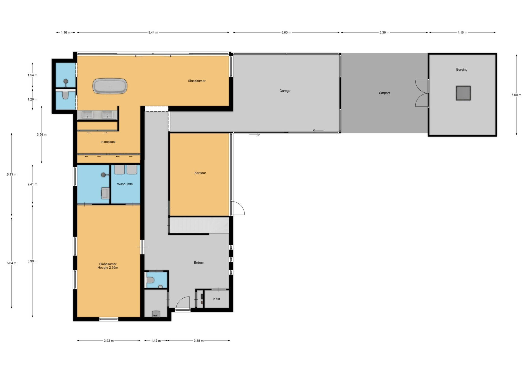
Op de begane grond bevinden zich de slaapkamers, sanitaire ruimtes en een kantoor. De master bedroom biedt een ongeëvenaard uitzicht en directe toegang tot het water via een schuifpui – ideaal voor een verfrissende ochtendduik. De en-suite badkamer beschikt over een vrijstaand bad, douche en toilet. Via deze ruimte bereikt u de walk-in closet. De tweede slaapkamer, aan de voorzijde van de woning, heeft een eigen badkamer met douche en wastafel. Ook vindt u hier een wasruimte en een kantoor, bereikbaar via de centrale hal, die tevens is voorzien van een gastentoilet, stookruimte en garderobeberging.
De ruime tuin is ronduit indrukwekkend. Vanaf diverse, op palen gefundeerde terrassen geniet u van een weids uitzicht over het water. Het perceel beschikt over een directe vaarverbinding met de Zuidplas en een eigen insteekhaven voor uw boot.
Eventueel is het achtergelegen perceel grond en water(totaal 5.630 m²), met een fraaie recreatie villa, bij te kopen en een deel van ca. 1.600 m² wordt dan gehuurd van het waterschap. Via een eigen toegangspoort aan de Groenlandse Kade en eigen brug naar het achter gelegen perceel bereikbaar zonder dat de privacy van beide percelen wordt benadeeld. Beschrijving, prijs en foto's beschikbaar voor geïnteresseerden.
Samengevat: stijlvol wonen op toplocatie.
Deze moderne villa is uniek in Vinkeveen – zowel qua ligging als uitvoering. De villa is instap klaar, doordacht ingedeeld en hoogwaardig afgewerkt. Een woning waar stijl, comfort en functionaliteit naadloos samen komen. Raadpleeg de plattegronden voor een volledig overzicht van de indeling.
Bijzonderheden villa:
* Woonoppervlak ca. 311 m²
* Inhoud ca. 1.058 m³
* Bouwjaar: 2019
* Hoogwaardige renovatie door Studio 110 Architectuur (Vinkeveen)
* Energielabel A+
* Verwarming en warm water via CV-installatie
* Volledig voorzien van vloerverwarming en dubbel glas
* Elektrisch bedienbaar toegangshek
* Oplevering in overleg
Meetinstructie (NEN 2580)
De gebruiksoppervlakten zijn gemeten volgens de Meetinstructie gebaseerd op NEN 2580. Hoewel zorgvuldig uitgevoerd door een professioneel meetbureau, zijn kleine afwijkingen mogelijk. Koper vrijwaart makelaar en verkoper van aansprakelijkheid en wordt in de gelegenheid gesteld het object zelf te (laten) meten.
Een bezichtiging meer dan waard.
Voor een afspraak kunt u contact opnemen met Jorrit van der Veen van Voorma en Millenaar, makelaars te Amstelveen, Wilfred Janssen, NVM-makelaar bij Netherlands Sotheby’s International Realty, of met uw eigen aankoopmakelaar.
English:
Unique Opportunity at the Vinkeveense Plassen
Groenlandse Kade 101A – Luxury Villa with Breathtaking Views
This exceptional detached villa, completely renovated under architecture in 2019, offers a living area of approximately 311 m² and is situated on a generous plot of approx. 2,650 m². Here, you live in ultimate comfort, daily enjoying a panoramic view over the Zuidplas lake. The home is sustainably built with high-quality materials, has energy label A+, and offers complete privacy and security.
From the electrically operated access gate, you drive onto the fully founded, maintenance-free parking area, with space for multiple cars. This is also where a private showroom is located, perfect for displaying your favorite car or art collection – or, if desired, incorporating it into the living space. Furthermore, there are two spacious storage rooms, one of which is accessible via the house and carport. The second storage room is located separately on the front area.
The main living floor is on the first level, allowing you to optimally enjoy the view of the lake from the living room. Through the glass sliding doors, you access the generous roof terrace of approx. 68 m² which benefits from a favorable sun exposure. Thanks to the detached location and large windows all around, combined with a skylight above the staircase, the house is very bright.
The luxury open kitchen is equipped with high-quality built-in appliances. The rear of the living room is currently furnished as an entertainment area, but it is also perfectly suited as a workspace or hobby room. A separate guest toilet and built-in cupboards provide extra comfort and functionality.
The bedrooms, sanitary facilities, and an office are located on the ground floor. The master bedroom offers an unparalleled view and direct access to the water via sliding doors – ideal for a refreshing morning swim. The en-suite bathroom features a freestanding bath, shower, and toilet. Through this space, you reach the walk-in closet. The second bedroom, at the front of the house, has its own bathroom with a shower and washbasin. You will also find a laundry room and an office here, accessible via the central hall, which also contains a guest toilet, boiler room, and wardrobe storage.
The spacious garden is nothing short of impressive. You can enjoy a sweeping view over the water from various terraces founded on piles. The plot features a direct boating connection to the Zuidplas and a private inlet harbor for your boat.
The rear plot of land and water (totaling 5,630 m²), with a beautiful holiday villa, can also be purchased, and a portion of approximately 1,600 m² can be rented from the water board. Access to the rear plot is via a private gate on Groenlandse Kade and a private bridge, without compromising the privacy of either plot. Description, price, and photos are available for interested parties
In summary: stylish living in a prime location.
This modern villa is unique in Vinkeveen – both in terms of location and execution. The villa is ready to move into, thoughtfully laid out, and finished to a high standard. A home where style, comfort, and functionality seamlessly converge. Consult the floor plans for a complete overview of the layout.
Key Details of the Villa:
• Living area approx. 311 m²
• Volume approx. 1,058 m²
• Year of construction: 2019
• High-quality renovation by Studio 110 Architectuur (Vinkeveen)
• Energy label A+
• Heating and hot water via central heating system (CV)
• Fully equipped with underfloor heating and double glazing
• Electrically operated access gate
• Completion in consultation
Measurement Instruction (NEN 2580)
The usable areas have been measured according to the Measurement Instruction based on NEN 2580. Although carefully executed by a professional measurement firm, minor deviations are possible. The buyer indemnifies the broker and seller from liability and is given the opportunity to (have) measure the property themselves in accordance with NEN 2580. More than worth to plan a viewing.
For an appointment, please contact Jorrit van der Veen of Voorma en Millenaar, brokers in Amstelveen, Wilfred Janssen, NVM broker at Netherlands Sotheby’s International Realty, or your own buying agent.
Overdracht
- Vraagprijs
- € 3.695.000 k.k.
- Status
- Beschikbaar
- Aanvaarding
- In overleg
Bouw
- Object type
- Villa, vrijstaande woning
- Soort bouw
- Bestaande bouw
- Bouwjaar
- 2019
- Soort dak
- Plat dak bedekt met bitumineuze dakbedekking
Oppervlakte en inhoud
- Woonoppervlakte
- 311 m²
- Perceeloppervlakte
- 2650 m²
- Inhoud
- 1058 m³
- Externe bergruimte
- 38 m²
- Gebouwgeb. buitenruimte
- 95 m²
Indeling
- Aantal kamers
- 4 kamers (3 slaapkamers)
- Aantal badkamers
- 2 badkamers
- Badkamervoorzieningen
- Ligbad, toilet, douche, dubbele wastafel, wastafelmeubel douche, wastafel, wastafelmeubel
- Aantal woonlagen
- 2 woonlagen
- Voorzieningen
- Mechanische ventilatie, alarminstallatie, tv-kabel, buitenzonwering, airconditioning, schuifpui, dakraam, glasvezel kabel
Energie
- Energielabel
- A
- Energielabel registratie
- 05-09-2023
- Isolatie
- Dubbel glas
- Verwarming
- Cv-ketel, vloerverwarming geheel
- Warm water
- Cv-ketel
- Cv ketel
- Combiketel gas gestookt uit 2019 (eigendom)
Buitenruimte
- Ligging
- Aan water, aan rustige weg, vrij uitzicht, open ligging, buiten bebouwde kom, aan vaarwater, landelijk gelegen
- Balkon / dakterras
- Dakterras
- Tuin
- Tuin rondom
- ligging tuin
- En bereikbaar via achterom
Bergruimte
- Schuur / berging
- Vrijstaand steen
- Voorzieningen
- Voorzien van elektra
Garage
- Soort garage
- Carport
Parkeergelegenheid
- Soort parkeergelegenheid
- Op eigen terrein, op afgesloten terrein
Energieverbruik in Vinkeveen
Energielabel deze woning
Energielabel A
Publicatie energielabel: 05-09-2023
Stroomverbruik per jaar
(Gemiddelde vrijstaande woning in Vinkeveen)
Gasverbruik per jaar
(Gemiddelde vrijstaande woning in Vinkeveen)
* Cijfers zijn afkomstig van het CBS en bedoeld als indicatie en kunnen verschillen voor deze woning
Indicatie hypotheeklasten
Eigen inleg:
Spaargeld / overwaarde
Rente:
Laagste 10-jaars rente
Laagste 10-jaars rente
2,78% - Centraal Beheer - NHG
3,04% - Centraal Beheer - 80%
Laagste 20-jaars rente
3,29% - Centraal Beheer - NHG
3,52% - Centraal Beheer - 80%
Laagste 30-jaars rente
3,41% - Centraal Beheer - NHG
3,7% - Argenta - 80%
Hypotheek:
Bruto maandlasten: € 0 p/m
Netto maandlasten: € 0 p/m
Hoe berekenen we dit?
Het rentepercentage is gebaseerd op de laagste 10 jaars vaste rente voor één hypotheekdeel. De vermelde rente (3.04% zonder NHG) is gecontroleerd op 19-04-2026. Deze berekening is gebaseerd op een annuïteitenhypotheek die volledig wordt afgelost, waarbij de maandlasten gedurende de gehele looptijd gelijk blijven. De werkelijke rente en netto maandlasten kunnen variëren, afhankelijk van uw persoonlijke situatie en de hypotheekverstrekker. Raadpleeg een financieel adviseur voor een nauwkeurige berekening en advies. Aan deze berekening kunnen geen rechten worden ontleend; het dient enkel als indicatie.
Documentatie
Kadastrale kaart
Leefomgeving
Plattegronden PDF
Brochure
WOZ waarderapport
BAG uittreksel
Bezoek onze website
Bezichtiging
Bod uitbrengen
Waardebepaling
Zoekopdracht
Alles downloaden
Op de kaart
Inwoners in Vinkeveen
Cijfers voor postcodegebied 3645
- Totaal aantal inwoners
- 9330 inwoners
- Mannen
- 50%
- Vrouwen
- 50%
Inwoners in Vinkeveen
Cijfers voor postcodegebied 3645
- tot 15 jaar
- 14%
- 15 tot 25 jaar
- 11%
- 25 tot 35 jaar
- 21%
- 45 tot 65 jaar
- 31%
- 65 en ouder
- 23%
Huishoudens in Vinkeveen
Cijfers voor postcodegebied 3645
- Eenpersoons zonder kinderen
- 33%
- Meerpersoons zonder kinderen
- 31%
- Huishoudens zonder kinderen
- 64%
Huishoudens in Vinkeveen
Cijfers voor postcodegebied 3645
- Huishoudens met één kind
- 8%
- Huishoudens met meerdere kinderen
- 29%
- Huishoudens met kinderen
- 37%
Woningen in Vinkeveen
Cijfers voor postcodegebied 3645
- Woningen voor 1945
- 10%
- Woningen tussen 1945 en 1965
- 15%
- Woningen tussen 1965 en 1975
- 27%
- Woningen tussen 1975 en 1985
- 14%
- Woningen tussen 1985 en 1995
- 13%
Woningen in Vinkeveen
Cijfers voor postcodegebied 3645
- Woningen tussen 1995 en 2005
- 7%
- Woningen tussen 2005 en 2015
- 6%
- Woningen na 2015
- 8%
- Huurwoningen
- 30%
- Koopwoningen
- 70%
Overige in Vinkeveen
Cijfers voor postcodegebied 3645
- Gemiddelde WOZ waarde
- € 412.000,-
- Personen onder de 65 met uitkering
- 5%
Overige in Vinkeveen
Cijfers voor postcodegebied 3645
- Adressen per km²
- 631
- Stedelijkheid (schaal 1 op 5)
- 40%
Voorma & Millenaar makelaars
Indien u vragen heeft of u wilt een bezichtiging inplannen, dan kunt u gebruik maken van het formulier hiernaast. Er zal daarna op korte termijn contact met u worden opgenomen.
Amsterdamseweg 176
1182 HL, Amstelveen
020 - 641 8694 amsterdam@voormamillenaar.nl www.voormamillenaar.nlContact opnemen
Wie is Voorma & Millenaar?
Voorma & Millenaar makelaars, opgericht in 1966, is al geruime tijd een vertrouwde naam in de Amstelveense woningmarkt. Ons toegankelijke kantoor is gevestigd aan de Amsterdamseweg in Amstelveen en wordt ondersteund door een enthousiast en proactief team dat altijd voor u klaarstaat.
Onze expertise ligt in het adviseren en bemiddelen op de Amstelveense woningmarkt, evenals in de omliggende gemeenten. Bij Voorma & Millenaar staat het leveren van uitstekende service centraal, waarbij we de belangen van onze klanten vooropstellen.
Ons hele team, gevestigd aan de Amsterdamseweg, staat voor u klaar! Het bestaat uit gedreven professionals die alles op alles zetten om de beste resultaten te behalen. Dankzij deze toewijding onderscheiden we ons al jaren met ongeëvenaarde resultaten en service.
Nieuwste reviews
-
Thoornpolder 26
Ik heb Celine leren kennen als een servicegerichte en toegankelijke makelaar die goed inzicht heeft van de lokale huizenmarkt.
-
Sint Janskruidlaan 104
Ik ben top geholpen bij de verkoop van mijn appartement!! Echt een Aanrader deze makelaar want ze hebben voor mooie foto’s gezorgd, in video en hielde mij van elke bezichtiging op...
-
Chantal Berken
Wij kijken met een heel goed gevoel terug op de verkoop van onze woning via Voorma & Millenaar Makelaars, en in het bijzonder de begeleiding van Jill Loffeld. Vanaf het eerste mome...